Páginas
28.1.13
15.1.13
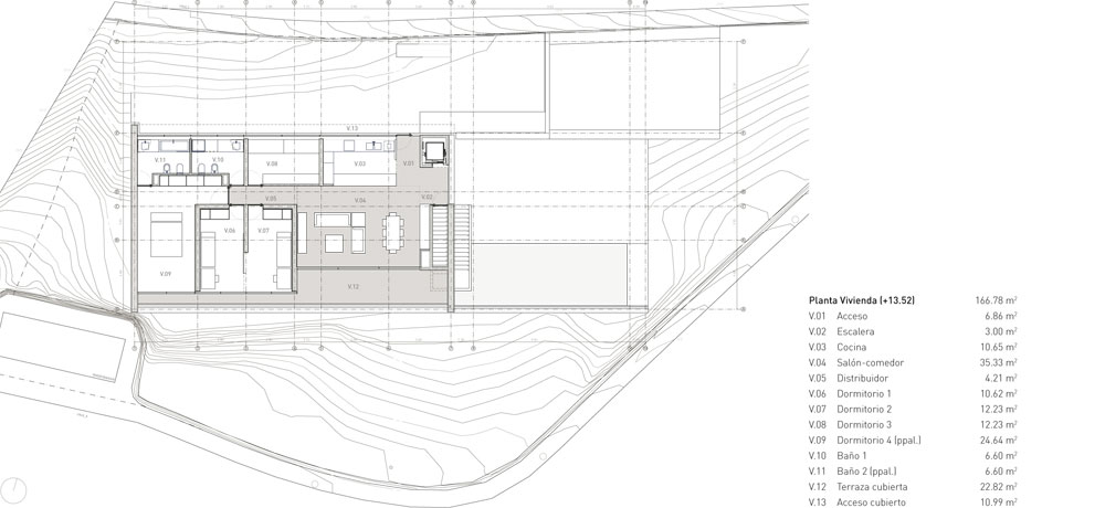
Casa del Acantilado | Fran Silvestre Arquitectos
No penhasco de Calpe, Alicante/Espanha, nasce a Casa del Acantilado, um projeto simples e objetivo, que consegue valorizar ainda mais o entorno e a vista.
(Que, cá pra nós, não é nada mal não é mesmo?)
Lindo projeto do Fran Silvestre Arquitectos
Postado por
carol
Assinar:
Comentários (Atom)



















































